BUYERS

803-261-4846
ABR - ACCREDITED BUYERS AGENT

TIMOTHY'S LIST OF REFERALS
agent photo

Timothy Couch

SELLERS SAVE FROM 30% TO 50% IN LISTING FEES

All About Serving U
Sellers save from 30%-50%
in listing fees when you sell then buy
your next home with Timothy!



sq. ft.
4 baths

5 beds
$612,990 Price
616590 MLS#

Marketing Remarks

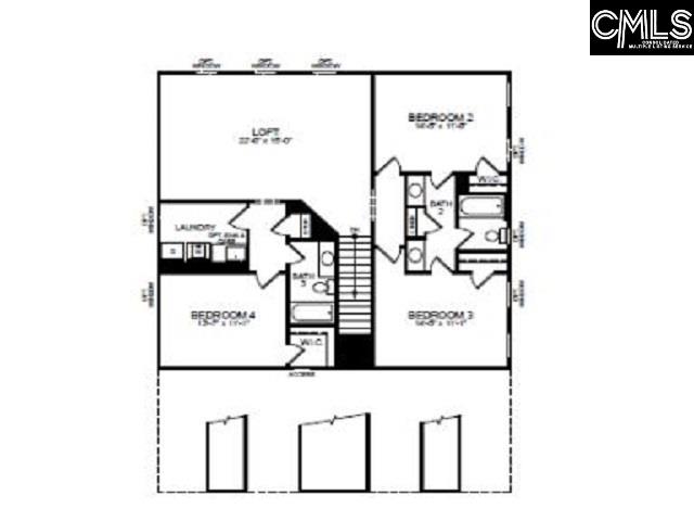
The Vanderhorst is a stunning two-story, five-bedroom, 4 bath home with a huge rocking chair front porch, first-floor primary bedroom, formal dining room, a first-floor guest suite with a full bath, designer kitchen with island, large pantry, separate butler's pantry, and a covered rear porch. Upstairs are three oversized secondary bedrooms, including a Jack-and-Jill bath between bedrooms two and three, plus a bonus room. This home has a two-car detached garage. Disclaimer: CMLS has not reviewed and, therefore, does not endorse vendors who may appear in listings.

additional details

  • Foundation Slab
  • Heating System Central
  • Cooling Central
  • Fireplace Gas Log-Natural
  • Garage Garage Detached
  • Total Baths 4

Room Dimensions




Great Schools in this area

similar Properties

Lexington
111 Crepe Myrtle Circle

Charming Oasis in Lexingtons Award-Winning School...
More Details

$625,000
Lexington
702 Hope Ferry

Private, serene, and full of charm, this beautiful...
More Details

$625,000
Lexington
157 Grey Oaks

PRICE IMPROVEMENT!! Welcome to 157 Grey Oaks! Rea...
More Details

$614,900
  • Mobile : 803-261-4846
  • Email : servingsc@gmail.com
Find Out More!
If you would like a tour of this property please contact Timothy at 803 261 4846

*
*
*

* Please let us know what you like about this property and when you would like a showing.

* required field.

My team and I are here to assist you. We value your time. Contact us for prompt service.


Mortgage Calculator

Borrowed Amount?

Mortage Term (in years)?

Interest Rate?

Instructions: Enter numbers and decimal points. No commas or other characters.

This is your principal + interest payment, or in other words, what you send to the bank each month. But remember, you will also have to budget for homeowners insurance, real estate taxes, and if you are unable to afford a 20% down payment, Private Mortgage Insurance (PMI). These additional costs could increase your monthly outlay by as much 50%, sometimes more.

Courtesy: Eastwood Homes of Columbia LLC

Data relating to real estate for sale on this web site comes in part from the IDX Program of the Columbia SC MLS. IDX information is provided exclusively for consumers' personal, non-commercial use and may not be used for any purpose other than to identify prospective properties consumers may be interested in purchasing.
Information is deemed reliable but is not guaranteed.

favicon © 2026 Timothy Couch. All rights reserved | Design by FlyerMaker Pro | admin