Marketing Remarks
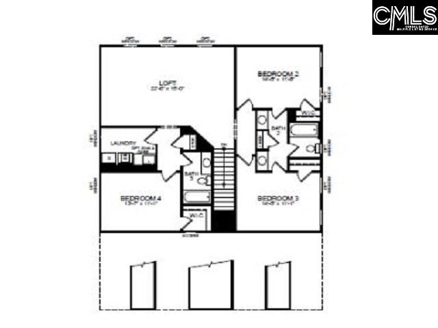
The Vanderhorst is a stunning two-story, four-bedroom, three-and-a-half-bath home with a huge rocking chair front porch, first-floor primary bedroom, five-piece primary bath, formal dining room, office with French doors, kitchen with island, large pantry, separate butler's pantry, and a covered rear porch. Upstairs are three oversized secondary bedrooms, including a Jack-and-Jill bath between bedrooms two and three, plus a large Bonus room. This home also features a detached, two-car garage. Unique Features Detached two-car garage .First-floor primary bedroom .Five-piece primary bath ,Formal dining room ,Designer kitchen with island and pantry ,Separate butler's pantry ,Gas fireplace with stone surround and raised hearth ,Bonus Room Disclaimer: CMLS has not reviewed and, therefore, does not endorse vendors who may appear in listings.
additional details
- Foundation Slab
- Heating System Central
- Cooling Central
- Fireplace Gas Log-Natural
- Garage Garage Detached
- Total Baths 4
Room Dimensions
Great Schools in this area
similar Properties
536 Sterling Brook
Experience timeless elegance and modern luxury in ...
More Details
$614,999
- Mobile : 803-261-4846
- Email : servingsc@gmail.com
My team and I are here to assist you. We value your time. Contact us for prompt service.
Mortgage Calculator
This is your principal + interest payment, or in other words, what you send to the bank each month. But remember, you will also have to budget for homeowners insurance, real estate taxes, and if you are unable to afford a 20% down payment, Private Mortgage Insurance (PMI). These additional costs could increase your monthly outlay by as much 50%, sometimes more.
Courtesy: Eastwood Homes of Columbia LLC
Data relating to real estate for sale on this web site comes in part from the IDX Program of the Columbia SC MLS. IDX information is provided exclusively for consumers' personal, non-commercial use and may not be used for any purpose other than to identify prospective properties consumers may be interested in purchasing.
Information is deemed reliable but is not guaranteed.
© 2026 Timothy Couch. All rights reserved | Design by FlyerMaker Pro | admin

